Weisser Holzbau
Home
Portrait
Holzhausbau
Das Holzhaus
Galerie
Konstruktion
Bautagebuch
Zimmerei
Dachdeckerei
Innenausbau
Energieberatung
Kontakt
Galerie
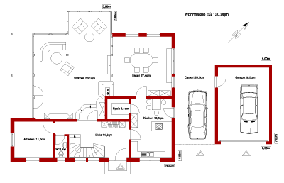
Haus Blum
zurück zur Übersicht